2 rue Robert Schuman, 44400 Rezé
Locaux Bureaux Commerces

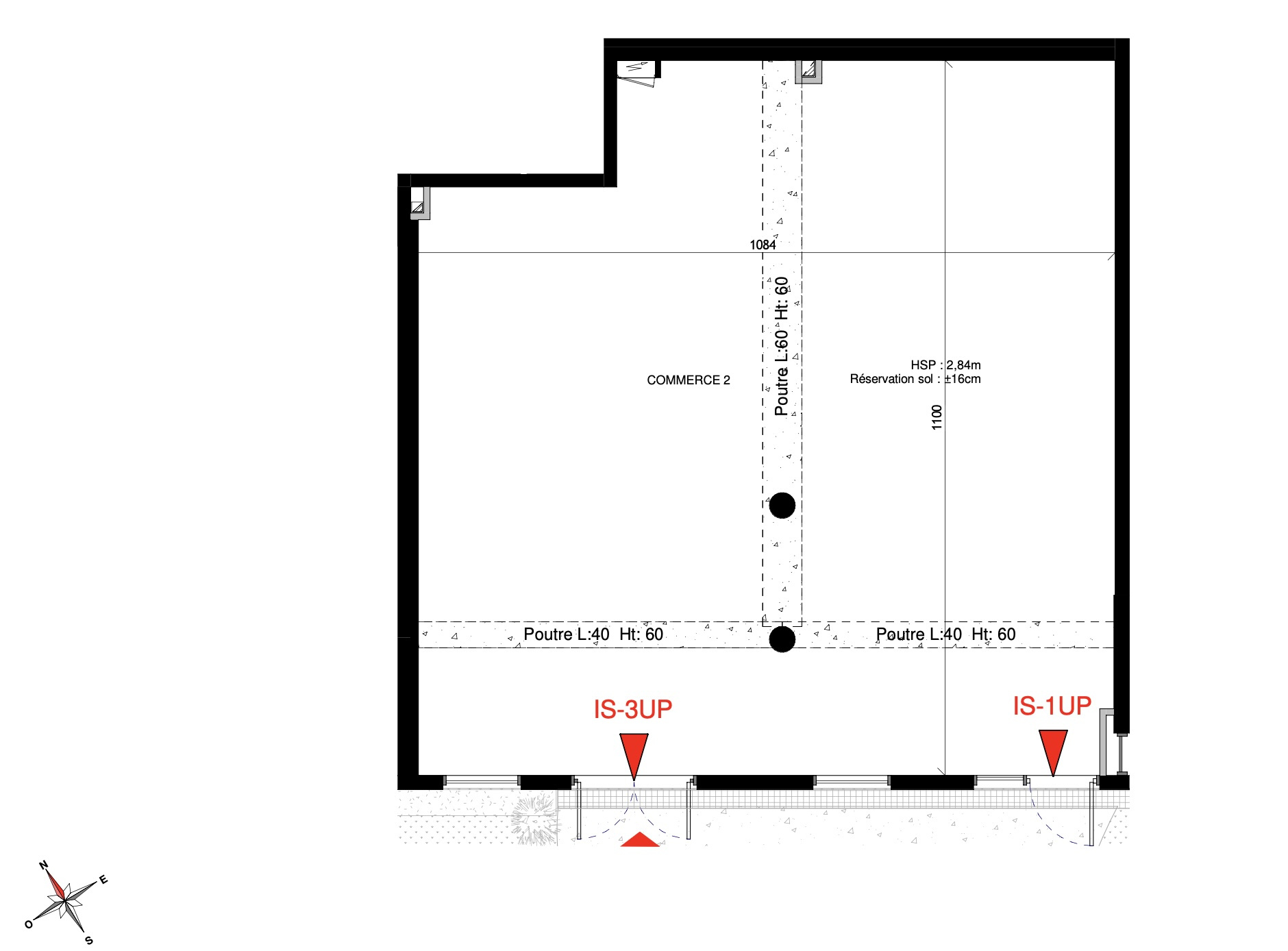
Saint Nazaire - A vendre Local commercial neuf 112 m2

Route des Commandières, Saint-Nazaire, 44600
350 000 €

Description

A vendre local commercial neuf de 112 m2 environ
Situé au nord de la commune de Saint Nazaire
Sur une agglomération qui regroupe 10 communes pour 130 000 habitants
Une situation idéale sur un axe passant avec un flux de 9000 véhicules jour
Accessible en voiture par l'axe NANTES-RENNES
A Proximité immédiate d'une grande zone commerciale où sont déjà implantées de nombreuses enseignes locales et nationales
Il est desservi par le réseau de transport en commun YCEO de l'agglomération avec les lignes C2, U4, 911, 913
Stationnements libres devant le local
La cellule sera livrée :
- aux normes enrgétiques RE 2020
- brut de béton
- réseaux et fluides en attente
- huisseries posées
- avec deux portes d'accès en façade
- avec 5 places de parking privatives en sous-sol
- ERP avec accessibilité PMR
Conditions de vente :
Livraison pévue T3 2026
350 000 EUR HT net vendeur
Honoraires de commercialisation 6% HT en sus du prix de vente net vendeur HT soit 21 000 EUR HT
Pour toutes informations complémentaires contactez-nous.
FOULON Nicolas
nicolasfoulon@groupelbc.com
0255078635

Cette annonce vous intéresse ?

 Location