2 rue Robert Schuman, 44400 Rezé
Locaux Bureaux Commerces

Les Sables d'Olonne - Cellule commerciale 700 m² à louer

77 avenue de Talmont, Les Sables-d'Olonne, 85180
6 667 €

Description


Commune des Sables d'Olonne secteur Chateau d'Olonne

Emplacement N°1 sur un axe passant proche de grandes enseignes de distribution et de services

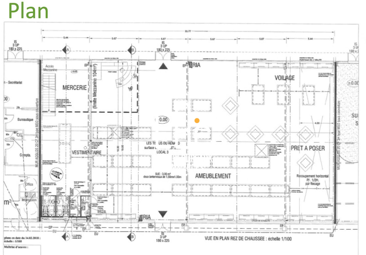
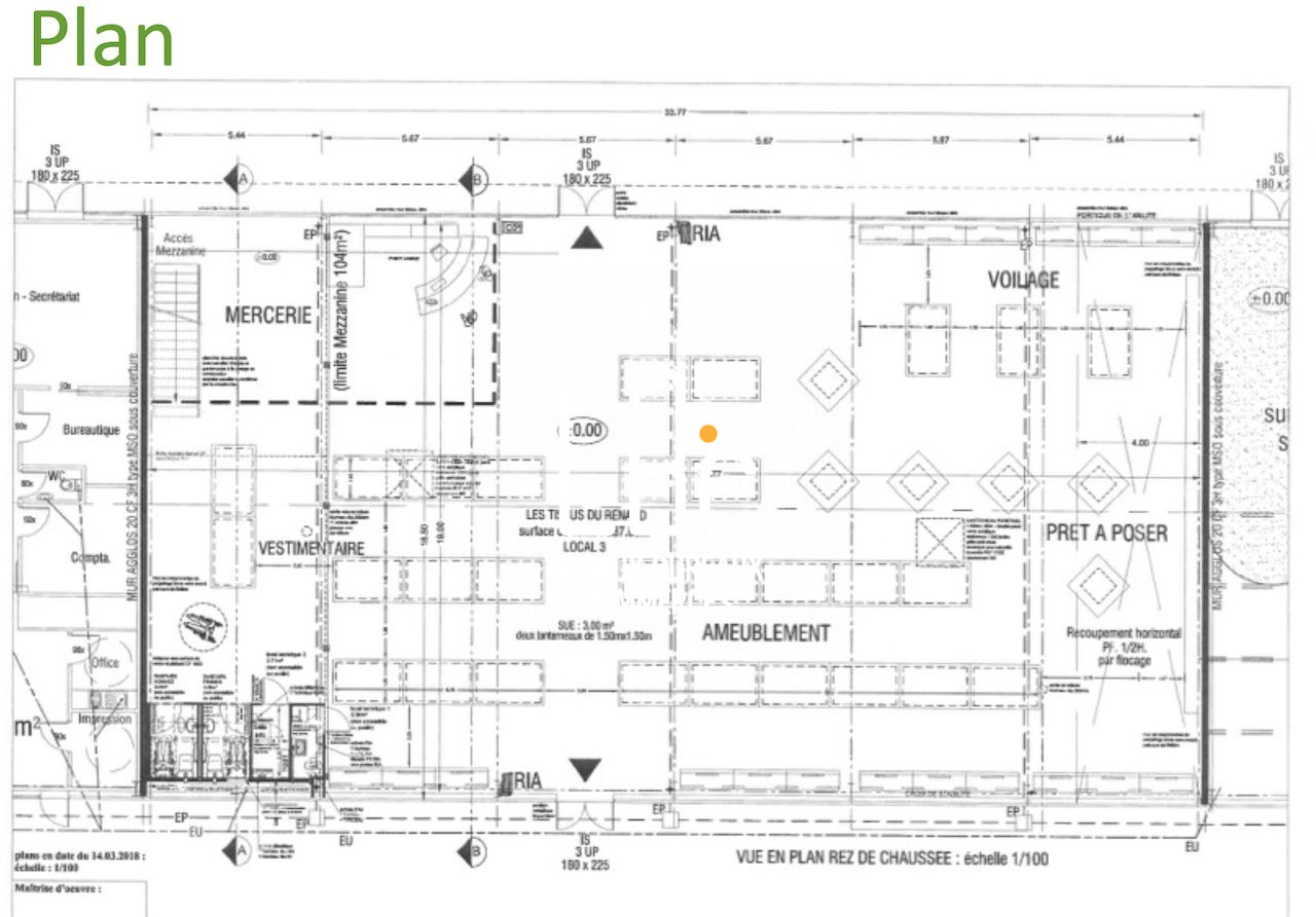
A louer cellule commerciale de 700 m2 environ dont mezzanine de 100 m2 environ

Caractéristiques :

ERP aux normes d'accès PMR

Résistance dalle 600 kg/M2

Linéaire vitrine de 30 métres

Climatisation, parking

Accès véhicules légers et poids lourds

Conditions de location :

Bail commercial 3/6/9

Loyer annuel 80 000 € HT/HC

Charges annuelles 2 800 € HT(provision)

Dépôt de garantie 3 mois de loyer

Disponible début 2025

A la Charge du preneur :

Taxe foncière, frais de rédaction de bail et d'état des lieux

Honoraires de commercialisation 25 % HT du loyer annuel HT/HC

Pour tout complément d'information merci de contacter l'agence


Honoraires de 20 000 € HT à la charge du locataire. Dépôt de garantie 20 000 €. Classe énergie D, Classe climat B. Les informations sur les risques auxquels ce bien est exposé sont disponibles sur le site Géorisques : georisques.gouv.fr.

Votre conseiller Locaux Bureaux Commerces : Nicolas FOULON
Agent commercial (Entreprise individuelle)
RSAC ADC 4401 2025 000 000 873
RCP RCACO-20-016231 GALIAN SMA BTP.
LOCAUX-BUREAUX-COMMERCES 02 55 07 86 35
Nicolas FOULON
nicolasfoulon@groupelbc.com
0255078635

Cette annonce vous intéresse ?

 Location