-
Location
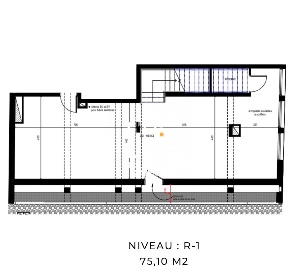
Nantes Saint Félix - Local professionnel 188 m² à louer
Description
Offrez à votre entreprise un espace de 188 m² sur deux niveaux, offrant un fort potentiel d'aménagement sur mesure : open space, bureaux cloisonnés, salles de réunion ou zones de coworking, à configurer selon vos besoins.Brut de béton avec réseaux en attente et huisserie déjà posée, pour une personnalisation complète de votre espace.
Parking possible pour vos collaborateurs et visiteurs.
Emplacement stratégique : axe passant, proximité immédiate des transports en commun et commerces, idéal pour dynamiser votre activité.
Créez un environnement de travail à votre image, flexible et fonctionnel, dans un quartier central de Nantes.
- Bail commercial 3/6/9
- Loyer annuel HT/HC 41 360 €
- Dépôt de garantie 3 mois de loyer
- Honoraires de commercialisation 25% HT du loyer annuel HT/HC à la charge du preneur
- Rédaction du bail et d'état des lieux à la charge du preneur en sus des honoraires
Sonia BERNOVILLE
Agent commercial
RSAC ADC 4401 2025 000 000 874
LOCAUX-BUREAUX-COMMERCES 02 55 07 86 35
Honoraires de 10 340 € HT à la charge du locataire. Dépôt de garantie 10 340 €. Non soumis au DPE. Les informations sur les risques auxquels ce bien est exposé sont disponibles sur le site Géorisques : georisques.gouv.fr. Ce bien vous est proposé par un agent commercial (Entreprise individuelle).
Votre conseiller LOCAUX-BUREAUX-COMMERCES : Sonia BERNOVILLE
Agent commercial (Entreprise individuelle)
RSAC ADC 4401 2025 000 000 874
RCP RCACO-24-028977 GALIAN SMA BTP.
LOCAUX-BUREAUX-COMMERCES 02 55 07 86 35
Location
Nous utilisons des cookies
Ce site utilise des cookies internes et tiers pour analyser et améliorer votre navigation.
Politique de traitement des données à caractère personnel
LOCAUX BUREAUX COMMERCES - SIREN : 440749356
Pour l'activité de transaction
Notre politique de traitement de vos données personnelles
Nous accomplissons les missions qui nous ont été confiées grâce à l'utilisation de données personnelles de nos clients, et de prospects, ce dans le respect des règles posées par le Règlement général sur les données personnelles (RGPD) et de la loi n° 78-17 du 6 janvier 1978 relative à l'informatique, aux fichiers et aux libertés.
Le responsable du traitement de vos données est l'entreprise LEILA MELLIER IMMOBILIER, dont le siège social est situé 16 IMPASSE DE L'ORÉE DU BOIS 44310 SAINT COLOMBAN et immatriculée au Registre du commerce et des sociétés sous le numéro 440749356. L'entreprise est représentée par Mme Leila MELLIER, Représentant(e) légal(e), . Contact : accueil@groupelbc.com.
Nous vous expliquons ici notre politique en la matière.
Pour l'exécution du mandat de vente qui nous est confié (communication, conseils, préparation du compromis de vente, respect des obligations légales, facturation), nous sommes amenés à traiter certaines données personnelles dans le cadre de notre activité de prospection commerciale ainsi que celles des propriétaires vendeurs et des acquéreurs.
1. Si vous êtes propriétaire vendeur
Nous traitons des données d'état civil permettant de vous identifier et de vous contacter (prénom, nom, adresse électronique et du domicile, contact téléphonique), des données relatives à votre statut familial, à votre situation patrimoniale (coordonnées bancaires, statut matrimonial, situation professionnelle), ainsi que l'adresse et les caractéristiques du bien concerné (étage, surface, titre de propriété, diagnostics, charges...).
Ces informations sont traitées par nos gestionnaires ; elles sont communiquées à l'acquéreur et, le cas échéant, aux tiers suivants :
• Acquéreur
• Notaire
• Avocat et huissier
• Tracfin
• Prestataire informatique
• Agent commercial
• Prestataire extérieur réalisant les visites
• Agence immobilière partenaire
Ces données sont conservées en base active pendant la durée du mandat, puis, en archives, pour une durée de 5 ans à compter de la fin de la relation contractuelle. Au terme de ce délai, les données sont détruites.
Certaines de vos données sont susceptibles d'être transférées en dehors de l'Union européenne ; si tel est le cas, une information vous est donnée lors de la collecte de vos données.
2. Si vous êtes acquéreur
Nous traitons des données d'état civil permettant de vous identifier et de vous contacter (prénom, nom, adresse électronique et du domicile, contact téléphonique), des données relatives à votre situation patrimoniale, professionnelle et matrimoniale ainsi que, le cas échéant, les caractéristiques du bien actuellement détenu.
Ces informations sont traitées par nos gestionnaires ; elles sont communiquées au vendeur et, le cas échéant, aux tiers suivants :
• Propriétaire vendeur sous mandat
• Tracfin
• Notaire
• Huissier
• Prestataire informatique
• Agent commercial
• Agence immobilière partenaire
• Prestataire extérieur réalisant les visites
Ces données sont conservées en base active pendant la durée du mandat, puis, en archives, pour une durée de 5 ans à compter de la conclusion de la vente du bien. Au terme de ce délai, les données sont détruites.
Certaines de vos données sont susceptibles d'être transférées en dehors de l'Union européenne ; si tel est le cas, une information vous est donnée lors de la collecte de vos données.
3. Si vous êtes prospect vendeur ou prospect acquéreur
Dans le cadre de notre activité de prospection foncière et immobilière, nous sommes amenés à traiter certaines données personnelles des prospects propriétaires vendeurs et des prospects acquéreurs.
Nous traitons des données d'état civil permettant de vous identifier et de vous contacter (prénom, nom, adresse électronique et du domicile, contact téléphonique), ainsi que les caractéristiques des biens à vendre ou à acheter pour lesquels nous disposons d'un mandat et de certaines données patrimoniales et financières.
Ces informations sont traitées par nos gestionnaires ; certaines d'entre elles seront échangées dans le cadre de la négociation entre le vendeur et l'acheteur. Certaines données peuvent être communiquées aux tiers suivants :
• Propriétaire vendeur sous mandat
• Tracfin
• Notaire
• Huissier
• Prestataire informatique
• Agent commercial
• Agence immobilière partenaire
• Prestataire extérieur réalisant les visites
Les données sont conservées en base active pendant un délai de 3 ans à compter de leur collecte ou du dernier contact venant du prospect. Au terme de ce délai, les données sont détruites.
Certaines de vos données sont susceptibles d'être transférées en dehors de l'Union européenne ; si tel est le cas, une information vous est donnée lors de la collecte de vos données.
Quels sont vos droits ?
La loi vous reconnait plusieurs droits :
- Le droit de retirer son consentement :
Lorsque vous avez donné votre consentement pour un traitement de certaines de vos données (en dehors des cas où le traitement de vos données est nécessaire à l'exécution d'un contrat de mandat, de bail, de vente…, ou lorsque ce traitement est imposé par la loi), vous pouvez à tout moment retirer ce consentement.
- Le droit d'accès :
Vous avez la possibilité de demander une copie des données à caractère personnel dont nous disposons vous concernant.
- Le droit de rectification de vos données :
En cas d'erreur ou de changement de votre situation (changement d'adresse, de n° de téléphone, …) vous pouvez demander la correction de ces informations.
- Le droit à l'effacement de vos données :
Dans certaines hypothèses seulement, vous pouvez obtenir l'effacement des données vous concernant (notamment, en cas de retrait du consentement, …).
- Le droit à la limitation :
Dans certaines hypothèses, vous pouvez demander que le traitement de vos données soit limité à leur conservation en vue, notamment, de l'exercice de vos droits en justice.
Pour l'exercice de vos droits, vous pouvez contacter : accueil@groupelbc.com, ou nous écrire à l'adresse suivante : LEILA MELLIER IMMOBILIER 16 IMPASSE DE L'ORÉE DU BOIS 44310 SAINT COLOMBAN
- Vous avez également le droit de faire une réclamation auprès de la CNIL (Commission nationale de l'informatique et des libertés, Service des plaintes, 3 Place de Fontenoy, TSA80715, 75334 PARIS CEDEX 07 ; https://www.cnil.fr/).
- Pour en savoir plus sur le contenu de ces droits : CNIL : « Les droits pour maîtriser vos données personnelles » : https://www.cnil.fr/fr/mes-demarches/les-droits-pour-maitriser-vos-donnees-personnelles
Pour l'activité de location
Notre politique de traitement de vos données personnelles
Nous accomplissons les missions qui nous ont été confiées grâce à l'utilisation de données personnelles de nos clients et de prospects, ce dans le respect des règles posées par le Règlement général sur les données personnelles (RGPD) et de la loi n° 78-17 du 6 janvier 1978 relative à l'informatique, aux fichiers et aux libertés.
Le responsable du traitement de vos données est l'entreprise LEILA MELLIER IMMOBILIER, dont le siège social est situé 16 IMPASSE DE L'ORÉE DU BOIS 44310 SAINT COLOMBAN et immatriculée au Registre du commerce et des sociétés sous le numéro 440749356. L'entreprise est représentée par Mme Leila MELLIER, Représentant(e) légal(e), . Contact : accueil@groupelbc.com.
Nous vous expliquons ici notre politique en la matière.
Pour l'exécution du mandat de location qui nous est confié (activité de prospection à destination de propriétaires en vue de la conclusion d'un bail ; examen de la candidature à la location ; proposition des biens à louer), nous sommes amenés à traiter certaines données personnelles des propriétaires bailleurs, des candidats locataires et de leur garant.
1. Si vous êtes un prospect propriétaire bailleur
Nous traitons des données d'état civil permettant de vous identifier et de vous contacter (prénom, nom, adresse électronique et du domicile, contact téléphonique) ainsi que l'adresse et les caractéristiques du bien ciblé.
Ces informations sont traitées par nos gestionnaires ; certaines d'entre elles peuvent être transmises aux tiers suivants :
• Prestataire informatique
• Agent commercial
• Entreprise pour effectuer les états des lieux
Ces données sont conservées en base active pendant un délai de 3 ans à compter de leur collecte ou du dernier contact venant du prospect. Au terme de ce délai, les données sont détruites.
Certaines de vos données sont susceptibles d'être transférées en dehors de l'Union européenne ; si tel est le cas, une information vous est donnée lors de la collecte de vos données.
2. Si vous êtes propriétaire bailleur
Nous traitons des données d'état civil permettant de vous identifier et de vous contacter (prénom, nom, adresse électronique et du domicile, contact téléphonique), ainsi que certaines données de nature patrimoniale (coordonnées bancaires, statut matrimonial, situation professionnelle, coordonnées le cas échéant du tuteur, bail de l'ancien locataire et/ou du locataire actuel), ainsi que l'adresse et les caractéristiques du bien concerné (étage, surface, titre de propriété, diagnostics, charges...).
Ces informations sont traitées par nos gestionnaires ; certaines d'entre elles peuvent être transmises aux tiers suivants :
• Locataire
• Procureur de la République
• Tracfin
• Expert-comptable
• Organisme financier
• Administration fiscale
• DGCCRF
• CNIL
• Huissier
• Prestataire informatiques
• Agent commercial
• Entreprise mandatée pour faire les états des lieux
• Entreprise mandatée pour la rédaction / signature du bail
Ces données sont conservées en base active pendant la durée du mandat, puis, en archives, pour une durée de 5 ans à compter de la fin de la relation contractuelle. Au terme de ce délai, les données sont détruites.
Certaines de vos données sont susceptibles d'être transférées en dehors de l'Union européenne ; si tel est le cas, une information vous est donnée lors de la collecte de vos données.
3. Si vous avez été candidat locataire non retenu ou le garant d'un candidat locataire non retenu
Afin d'apprécier votre candidature à la location d'un bien, notamment au regard de votre solvabilité, nous vous demandons la communication de certaines données. Elles portent sur votre état civil afin de pouvoir vous identifier et vous contacter (prénom, nom, civilité, numéro de téléphone ou adresse électronique, et informations présentes sur les pièces justificatives). Elles concernent également les pièces du dossier locataire en application du décret n° 2015-1437 du 5 novembre 2015 fixant la liste des pièces justificatives pouvant être demandées au candidat à la location et à sa caution.
Ces informations sont traitées par nos gestionnaires ; elles sont communiquées au propriétaire bailleur (en fonction du type de mandat qui nous a été confié). Certaines d'entre elles peuvent être communiquées aux tiers suivants :
• Propriétaire bailleur
• Prestataire informatique
• Agent commercial
• Entreprise mandatée pour faire les états des lieux
• Entreprise mandatée pour la rédaction / signature du bail
Les données sont conservées en base active le temps nécessaire à l'examen des candidatures, puis conservées en archives pendant une durée de 6 ans correspondant au délai de prescription de l'action pour discrimination. Au terme de ce délai, les données sont détruites.
Certaines de vos données sont susceptibles d'être transférées en dehors de l'Union européenne ; si tel est le cas, une information vous est donnée lors de la collecte de vos données.
4. Si vous êtes locataire
Nous traitons des données d'état civil permettant de vous identifier et de vous contacter (prénom, nom, adresse électronique et du domicile, contact téléphonique) ; les pièces du dossier locataire (en application du décret n° 2015-1437 du 5 novembre 2015 fixant la liste des pièces justificatives pouvant être demandées au candidat à la location et à sa caution) ;vos coordonnées bancaires ; votre numéro d'allocataire à la Caisse d'Allocations Familiales (CAF) ou à la Mutualité Sociale Agricole (MSA) en cas de perception de l'allocation logement en tiers payant et votre attestation d'assurance. Nous traitons également, en cas de demande de cotitularité du bail, l'identité du conjoint.
Nous traitons, en fonction des circonstances d'autres données comme la copie de l'ordonnance de protection délivrée par le juge aux affaires familiales ; la copie d'une décision de condamnation pénale pour des faits de violence commis à l'encontre du locataire ou sur un enfant qui réside habituellement avec lui, ; les informations justifiant de l'état de santé nécessitant un changement de domicile et/ou de la perception de l'allocation adulte handicapé.
Ces informations sont traitées par nos gestionnaires ; certaines d'entre elles peuvent être transmises aux tiers suivants :
• Propriétaire bailleur
• Notaire
• Avocat
• Huissier
• Observatoire des loyers
• Tracfin
• Organisme financier
• Administration fiscale
• DGCCRF
• CNIL
• Expert-comptable
• Prestataire informatique
• Agent commercial
• Entreprise pour effectuer les états des lieux
• Entreprise pour la rédaction / signature du bail
Ces données sont conservées en base active pendant la durée du bail, puis, en archives, pour une durée de 3 ans à compter de la fin de la relation contractuelle. Au terme de ce délai, les données sont détruites.
Certaines de vos données sont susceptibles d'être transférées en dehors de l'Union européenne ; si tel est le cas, une information vous est donnée lors de la collecte de vos données.
5. Si vous êtes le garant du locataire (ex. caution)
Afin de conclure le contrat de cautionnement entre le propriétaire bailleur et la caution, nous vous demandons la communication de certaines données. Elles portent sur votre état civil afin de pouvoir vous identifier et vous contacter (prénom, nom, civilité, numéro de téléphone ou adresse électronique, et informations présentes sur les pièces justificatives). Elles concernent également les données mentionnées par le décret n° 2015-1437 du 5 novembre 2015 fixant la liste des pièces justificatives pouvant être demandées au candidat à la location et à sa caution.
Ces informations sont traitées par nos gestionnaires ; elles sont communiquées au propriétaire bailleur et peuvent être transmises aux tiers suivants :
• Propriétaire bailleur
• Prestataire informatique
• Agent commercial
Les données sont conservées en base active pendant toute la durée du bail. Elles sont ensuite conservées en archives en vertu des obligations légales applicables, pour les durées prévues par celles-ci, et pour exercer et prouver tout droit, pendant la durée des délais de prescription applicables. Au terme de ce délai, les données sont détruites.
Certaines de vos données sont susceptibles d'être transférées en dehors de l'Union européenne ; si tel est le cas, une information vous est donnée lors de la collecte de vos données.
Quels sont vos droits ?
La loi vous reconnait plusieurs droits :
- Le droit de retirer son consentement :
Lorsque vous avez donné votre consentement pour un traitement de certaines de vos données (en dehors des cas où le traitement de vos données est nécessaire à l'exécution d'un contrat de mandat, de bail, de vente…, ou lorsque ce traitement est imposé par la loi), vous pouvez à tout moment retirer ce consentement.
- Le droit d'accès :
Vous avez la possibilité de demander une copie des données à caractère personnel dont nous disposons vous concernant.
- Le droit de rectification de vos données :
En cas d'erreur ou de changement de votre situation (changement d'adresse, de n° de téléphone, …) vous pouvez demander la correction de ces informations.
- Le droit à l'effacement de vos données :
Dans certaines hypothèses seulement, vous pouvez obtenir l'effacement des données vous concernant (notamment, en cas de retrait du consentement, …).
- Le droit à la limitation :
Dans certaines hypothèses, vous pouvez demander que le traitement de vos données soit limité à leur conservation en vue, notamment, de l'exercice de vos droits en justice.
Pour l'exercice de vos droits, vous pouvez contacter : accueil@groupelbc.com, ou nous écrire à l'adresse suivante : LEILA MELLIER IMMOBILIER 16 IMPASSE DE L'ORÉE DU BOIS 44310 SAINT COLOMBAN
- Vous avez également le droit de faire une réclamation auprès de la CNIL (Commission nationale de l'informatique et des libertés, Service des plaintes, 3 Place de Fontenoy, TSA80715, 75334 PARIS CEDEX 07 ; https://www.cnil.fr/).
- Pour en savoir plus sur le contenu de ces droits : CNIL : « Les droits pour maîtriser vos données personnelles » : https://www.cnil.fr/fr/mes-demarches/les-droits-pour-maitriser-vos-donnees-personnelles
Pour l'activité de gestion du personnel
Notre politique de traitement de vos données personnelles
Nous accomplissons nos missions grâce à des collaborateurs que nous employons dans le cadre d'un contrat de travail, d'apprentissage ou d'une convention de stage. Nous traitons leurs données personnelles dans le respect des règles posées par le Règlement général sur les données personnelles (RGPD), de la loi n° 78-17 du 6 janvier 1978 relative à l'informatique, aux fichiers et aux libertés et du droit du travail.
Le responsable du traitement de vos données est l'entreprise LEILA MELLIER IMMOBILIER, dont le siège social est situé 16 IMPASSE DE L'ORÉE DU BOIS 44310 SAINT COLOMBAN et immatriculée au Registre du commerce et des sociétés sous le numéro 440749356. L'entreprise est représentée par Mme Leila MELLIER, Représentant(e) légal(e), . Contact : accueil@groupelbc.com.
Nous vous expliquons ici notre politique en la matière.
1. Si vous êtes, ou avez été, candidat à un emploi, à un apprentissage ou à un stage
Afin de communiquer avec les candidats et d'examiner leur candidature, nous traitons des données d'état civil et de contact (prénom, nom, civilité, numéro de téléphone, adresse postale, adresse électronique, pièce justificative d'identité (carte nationale d'identité ou passeport). Pour évaluer l'aptitude et les compétences professionnelles des candidats, nous collectons différentes informations concernant le parcours de formation et l'expérience professionnelle.
Ces informations sont traitées par le service des ressources humaines et, le cas échéant, par les tiers suivants :
• Prestataire informatique
• Expert-comptable
Les données sont conservées en base active pendant la période de recrutement. Elles sont ensuite conservées en archives pendant une durée de 6 ans correspondant au délai de prescription de l'action pour discrimination à l'embauche. Au terme de ce délai, les données sont détruites.
Certaines de vos données sont susceptibles d'être transférées en dehors de l'Union européenne ; si tel est le cas, une information vous est donnée lors de la collective de vos données.
2. Si vous êtes ou avez été en poste (salarié, apprenti, stagiaire)
L'employeur doit disposer pour la conclusion du contrat de travail et sa bonne exécution de données sur ses employés. Ce sont notamment les prénom, nom, civilité, date de naissance, lieu de naissance, nationalité, numéro de téléphone, adresse postale, adresse électronique, coordonnées de personnes à prévenir en cas d'urgence, situation familiale, situation matrimoniale, informations concernant les ayants-droits de l'employé, CV dont parcours scolaire et professionnel, coordonnées bancaires. L'employeur traite également des données financières dans le cadre du prélèvement de l'impôt à la source (taux d'imposition). Il peut être amené à connaitre de données de santé (informations liées à une situation de handicap).
Ces informations sont traitées par le service des ressources humaines. Certaines de ces données peuvent être transmises aux tiers suivants :
• Administration
• Assurance chômage, maladie, retraite, mutuelle, médecine du travail...,
• Prestataire informatique
• Expert-comptable
• Entreprise éditant les bulletins de salaires
Les données sont conservées en base active pendant la durée du contrat de travail. A compter de la fin de la relation contractuelle, elles sont conservées en archives en vertu des obligations légales applicables, pour les durées prévues par celles-ci, et pour exercer et prouver tout droit, pendant la durée des délais de prescription applicables. Au terme de ce délai, les données sont détruites.
Certaines de vos données sont susceptibles d'être transférées en dehors de l'Union européenne ; si tel est le cas, une information vous est donnée lors de la collecte de vos données.
Quels sont vos droits ?
La loi vous reconnait plusieurs droits :
- Le droit de retirer son consentement :
Lorsque vous avez donné votre consentement pour un traitement de certaines de vos données (en dehors des cas où le traitement de vos données est nécessaire à l'exécution d'un contrat de mandat, de bail, de vente…, ou lorsque ce traitement est imposé par la loi), vous pouvez à tout moment retirer ce consentement.
- Le droit d'accès :
Vous avez la possibilité de demander une copie des données à caractère personnel dont nous disposons vous concernant.
- Le droit de rectification de vos données :
En cas d'erreur ou de changement de votre situation (changement d'adresse, de n° de téléphone, …) vous pouvez demander la correction de ces informations.
- Le droit à l'effacement de vos données :
Dans certaines hypothèses seulement, vous pouvez obtenir l'effacement des données vous concernant (notamment, en cas de retrait du consentement, …).
- Le droit à la limitation :
Dans certaines hypothèses, vous pouvez demander que le traitement de vos données soit limité à leur conservation en vue, notamment, de l'exercice de vos droits en justice.
Pour l'exercice de vos droits, vous pouvez contacter : accueil@groupelbc.com, ou nous écrire à l'adresse suivante : LEILA MELLIER IMMOBILIER 16 IMPASSE DE L'ORÉE DU BOIS 44310 SAINT COLOMBAN
- Vous avez également le droit de faire une réclamation auprès de la CNIL (Commission nationale de l'informatique et des libertés, Service des plaintes, 3 Place de Fontenoy, TSA80715, 75334 PARIS CEDEX 07 ; https://www.cnil.fr/).
- Pour en savoir plus sur le contenu de ces droits : CNIL : « Les droits pour maîtriser vos données personnelles » : https://www.cnil.fr/fr/mes-demarches/les-droits-pour-maitriser-vos-donnees-personnelles
Site web
Notre politique de traitement de vos données personnelles
Nous accomplissons les missions qui nous ont été confiées grâce à l'utilisation de données personnelles de nos clients, et de prospects, ce dans le respect des règles posées par le Règlement général sur les données personnelles (RGPD) et de la loi n° 78-17 du 6 janvier 1978 relative à l'informatique, aux fichiers et aux libertés.
Le responsable du traitement de vos données est l'entreprise LEILA MELLIER IMMOBILIER, dont le siège social est situé 16 IMPASSE DE L'ORÉE DU BOIS 44310 SAINT COLOMBAN et immatriculée au Registre du commerce et des sociétés sous le numéro 440749356. L'entreprise est représentée par Mme Leila MELLIER, Représentant(e) légal(e), . Contact : accueil@groupelbc.com.
Nous vous expliquons ici notre politique en la matière.
Nous présentons les différents services de notre entreprise sur un site web consultable à l'adresse https://locaux-bureaux-commerces.com. Nous sommes susceptibles d'afficher certains biens à vendre, à louer (caractéristiques, adresse, photos, …) dans le cadre du mandat qui nous est confié. Lorsqu'un internaute se connecte, il est informé sur notre politique des cookies. Des données peuvent être collectées à travers des formulaires de contact.
Certaines données sont susceptibles d'être transférées en dehors de l'Union européenne ; si tel est le cas, une information vous est donnée lors de la collecte de vos données.
Quels sont vos droits ?
La loi vous reconnait plusieurs droits :
- Le droit de retirer son consentement :
Lorsque vous avez donné votre consentement pour un traitement de certaines de vos données (en dehors des cas où le traitement de vos données est nécessaire à l'exécution d'un contrat de mandat, de bail, de vente…, ou lorsque ce traitement est imposé par la loi), vous pouvez à tout moment retirer ce consentement.
- Le droit d'accès :
Vous avez la possibilité de demander une copie des données à caractère personnel dont nous disposons vous concernant.
- Le droit de rectification de vos données :
En cas d'erreur ou de changement de votre situation (changement d'adresse, de n° de téléphone, …) vous pouvez demander la correction de ces informations.
- Le droit à l'effacement de vos données :
Dans certaines hypothèses seulement, vous pouvez obtenir l'effacement des données vous concernant (notamment, en cas de retrait du consentement, …).
- Le droit à la limitation :
Dans certaines hypothèses, vous pouvez demander que le traitement de vos données soit limité à leur conservation en vue, notamment, de l'exercice de vos droits en justice.
Pour l'exercice de vos droits, vous pouvez contacter : accueil@groupelbc.com, ou nous écrire à l'adresse suivante : LEILA MELLIER IMMOBILIER 16 IMPASSE DE L'ORÉE DU BOIS 44310 SAINT COLOMBAN
- Vous avez également le droit de faire une réclamation auprès de la CNIL (Commission nationale de l'informatique et des libertés, Service des plaintes, 3 Place de Fontenoy, TSA80715, 75334 PARIS CEDEX 07 ; https://www.cnil.fr/).
- Pour en savoir plus sur le contenu de ces droits : CNIL : « Les droits pour maîtriser vos données personnelles » : https://www.cnil.fr/fr/mes-demarches/les-droits-pour-maitriser-vos-donnees-personnelles
Page générée par Déclarations-Juridiques.fr
Cookies nécessaires
Indispensables aux fonctions de base du site et ne peuvent pas être désactivés.
3 cookies détectés.
-
jbcookies
(JoomBall!)
Stocke le consentement donné par l'utilisateur sur le site.
-
joomla_user_state
(Joomla!)
Conserve l'état d'authentification de l'utilisateur.
-
joomla_remember_me_*
(Joomla!)
Garde la session mémorisée pour l'utilisateur authentifié.
Cookies d'analyse
Ils nous aident à comprendre l'utilisation et à améliorer les performances.
2 cookies détectés.
-
_ga
(Google Analytics)
Permet d'identifier anonymement les utilisateurs et les sessions, et de mesurer la manière dont ils interagissent sur le site.
- _ga_* (Google Analytics)