2 rue Robert Schuman, 44400 Rezé
Locaux Bureaux Commerces

Sainte Luce sur Loire - Plateaux de bureaux 1364 m² à vendre

Rue Jules Verne, Sainte-Luce-sur-Loire, 44980
3 818 792 €

Description


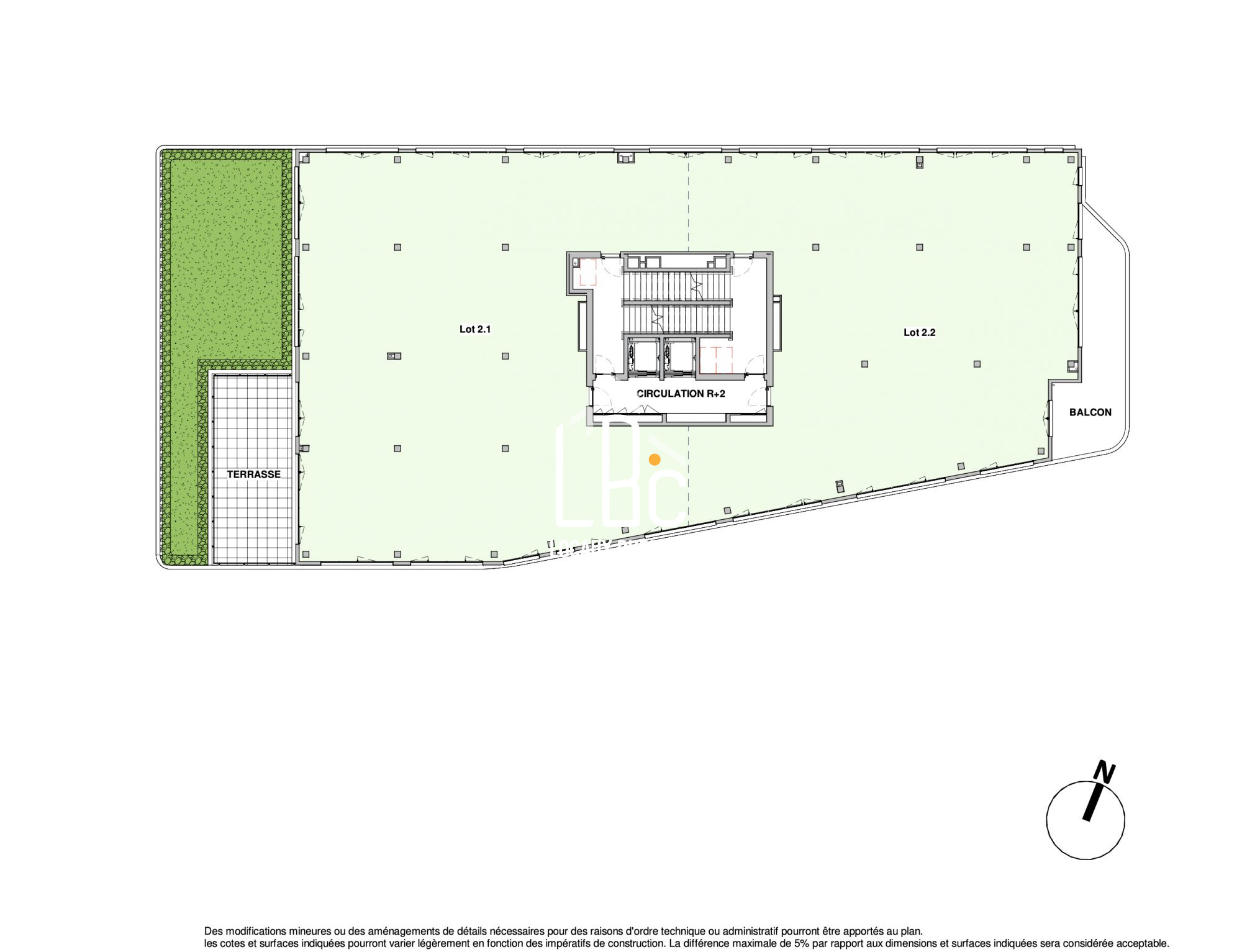
À vendre plateaux de bureaux sur 2 niveaux (R+2 et R+3), d'une surface totale d'environ 1364 m² avec 32 places de stationnement en sous-sol.
Situé à proximité immédiate de toutes les commodités : commerces de détail, restaurants, services, pharmacie, rue Jules Verne à Sainte-Luce-sur-Loire.
L'accès est facilité par la proximité de l'autoroute A811 (à 8 kms) et de la gare de Nantes (à 8 kms également). Le centre commercial Leclerc Paridis, avec ses nombreux commerces, se trouve à seulement 3 kms. Le site est desservi par les transports en commun de NANTES Métropole (NAOLIB ligne Chrono bus C7, arrêt 'La grille').

R+2 :

- 2 plateaux de bureaux d'environ 294 m2 et 345 m2 avec 54 m2 environ de parties communes

- 1 balcon de 30 m2 environ, 1 terrasse de 38 m2 environ

R+3 :

- 2 plateaux de bureaux d' environ 298 m2 et 320 m2 avec 52 m2 environ de parties communes

- 2 balcons de 27 m2 environ, 1 jardin d'hiver de 23 m2 environ

- Accès sécurisé par visiophone/digicode, Ascenseur

- Accès personnes à mobilité réduite (PMR)

Livraison début 2026.
Vous pouvez nous joindre au 02 55 07 86 35 Sonia Bernoville


Honoraires inclus de 3% HT à la charge de l'acquéreur. Prix hors honoraires 3 707 565 € HT. Non soumis au DPE. Les informations sur les risques auxquels ce bien est exposé sont disponibles sur le site Géorisques : georisques.gouv.fr.

Votre conseiller Locaux Bureaux Commerces : Sonia BERNOVILLE
Agent commercial (Entreprise individuelle)
RSAC ADC 4401 2025 000 000 874
RCP RCACO-24-028977 GALIAN SMA BTP.
LOCAUX-BUREAUX-COMMERCES 02 55 07 86 35
Sonia BERNOVILLE
soniabernoville@groupelbc.com
0255078635

Cette annonce vous intéresse ?

 Location